Neubauprojekt: Wohn- und Geschäftshäuser rund um die Kornbrennerei

Ihr neues Zuhause in Telgte – jetzt entdecken!

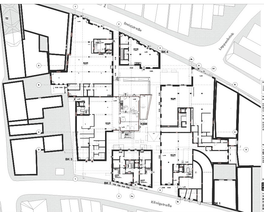
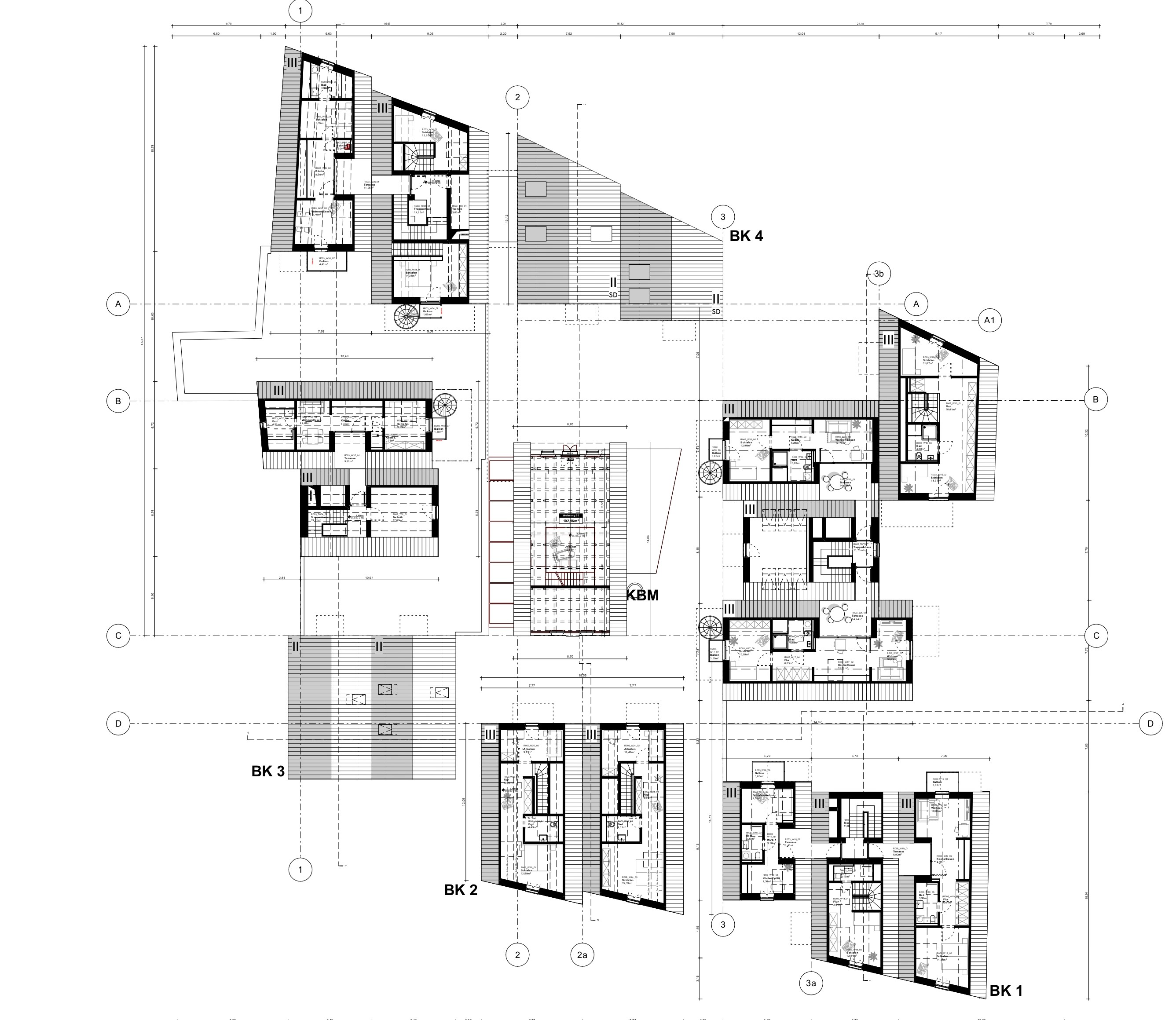
Im Herzen von Telgte entsteht mit dem Wohnquartier „Kornbrennerei“ ein modernes Ensemble aus 40 hochwertig ausgestatteten Mietwohnungen. Die barrierefreien Zugänge, ein Personenaufzug sowie durchdachten Grundrisse bieten Komfort und Lebensqualität für jedes Alter.

Zu den Immobilien

Telgte, Steinstraße 11

Baufortschritt: Stand vom 19.09.2025

🎥 Baufortschritt im Zeitraffer:

Begleiten Sie den Entstehungsprozess live mit – unser Video zeigt die Entwicklung des Projekts von der ersten Baumaßnahme bis zum aktuellen Stand.

https://www.panoramapicture.de/panorama/kornbrennerei/